Villa Schutskamp

In een nieuwe luxe nieuwbouwwijk staat villa Schutskamp. Dit is een jaren dertig huis met een knipoog naar de moderne architectuur. Een mix van oude elementen met moderne nieuwe vormen en materialen. Villa Schutskamp is een uniek ontwerp, nergens anders zal je iets gelijks vinden.

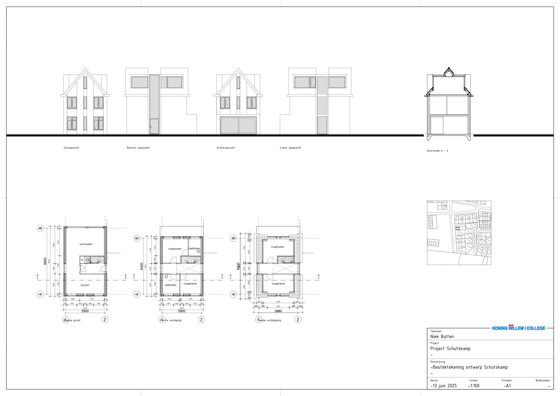
Voor de buiten kant hebben we een mix van simpele rode bakstenen en een strakke betonen gevel, deze mix zorgt voor een goed samenspeel tussen de jaren dertig stijl en de moderne architectuur. In de gemetselde gevel zal je ook mooie details zien. Bijvoorbeeld hebben we aan de rechter zijgevel een groot vlak waar de bakstenen verticaal zijn geplaats. Op deze manier zorgen we dat de grote vlakken van baksteen minder saai worden en door dit soort details worden gebroken. Dit soort details kan je ook terugvinden in de gemetselde hekpijlers en in de overkapping.
Om de jaren dertig stijl te behouden hebben we ervoor gekozen om de kozijnen wit te houden. Ook hebben we gekozen voor een getimmerde dakgoot. Dit is ook een kenmerk van jaren dertig en daarom kon dit ook zeker niet ontbreken.

In het midden van het huis hebben we gekozen voor een modern ontwerp. Hier zie je grote ramen die zoveel mogelijk daglicht bieden van twee verschillende kanten. Deze lopen vanaf het maaiveld helemaal door naar de bovenkant waar het doorloopt in de dakkapellen. We hebben hier gekozen voor een metalen afwerking. Op deze manier zorgen we dat hier weinig focus op komt. In de dakkapellen hebben we ook aan twee kanten grote ramen geplaatst wat zorgt dat je de hele dag zon in de ruimtes hebt.

De achterkant is vergelijkbaar met de voorkant. Hier hebben we wel gekozen voor een grote glazen pui die ervoor zorgt dat er veel licht binnen komt en dat binnen en buiten een geheel wordt. We hebben hier ook een stuk overdekt zodat je hier het hele jaar buiten kan zijn.
Natuur is ook een belangrijk punt in onze ontwerpen, daarom hebben we gekozen om ook hier veel plek voor te bieden en het ook echt in het ontwerp mee te nemen. Hier hebben we gekozen om een groot vlak voor planten te maken. Op deze manier zorgen we dat je vanuit binnen ook een connectie hebt met de natuur. We hebben het overkapte deel hier ook door getrokken en op deze manier hebben we een mooie connectie gemaakt met de overkapping. De overkapping is gemetseld en bied voor veel verschillende doeleinden. Ook hebben we aan de achterkant ruimte gemaakt voor een buitendouche en installaties voor het zwembad.

In de rest van de tuin had de natuur ook een hoge prioriteit. Door veel planten, bosjes en bomen te plaatsen in de tuin creëren we een rustige sfeer en zorgen we voor een natuurlijke tuin. Naast natuur vinden we luxe ook belangrijk. Daarom hebben we ook een groot zwembad samen met ruimte voor ontspanning. Dit samen met de natuur en een grote overkapping zorgt voor een ideale tuin voor veel verschillende doeleinden.

Locatie
Concept

Opdrachtgever
 fam. De Vries

Architect
Niek Bulten

Een lichtspel 

De binnen kant vinden we ook erg belangrijk bij Bulten Designs. We hebben hier bij villa Schutskamp een hele speciale techniek gebruikt wat nog nooit eerder in een woonhuis is gedaan. Dit is terug te zien in de hal. Hier zie je de grote hoge ramen die van benende helemaal naar boven strekken. Binnen wouden we dit effect doortrekken. Daarom hebben we op de verschillende verdiepingen een glazen vloer geplaatst. Dit zorgt ervoor dat je door alle verdiepingen heen kan kijken. Boven in het plafond hebben we een groot dakraam gemaakt en op deze manier kan je vanaf de begaande grond door alle verdiepingen heen naar de hemel kijken. Door de hoeveelheid glas samen met de witte muren krijg je een hele ruimtelijke sfeer en vooral heel veel natuurlijk licht.

In de rest van het huis hebben we ook veel natuurlijk licht. Zo ook in de woonkamer en keuken was dit een belangrijk aspect. Op deze manier kan je veel gebruik maken van kleuren zonder dat het huis donker wordt. In de keuken hebben we daarom ook gekozen voor een gerookt eiken keuken. Dit geeft veel contrast en zorgt daardoor dat het heel mooi in het huis past. Dit hebben we ook met andere kleurenkeuzes gedaan in de keuken en woonkamer en keuken. Op die manier hebben we een warme luxe sfeer kunnen creëren.

Maak jouw eigen website met JouwWeb